Datos Básicos
m2 construidos
150 m2
m2 terreno
59 m2
Precio por m2
900 €/m2
Descripción
📢 OPORTUNIDAD DE INVERSIÓN — PROPIEDAD EN CESIÓN DE REMATE
Inmueble sin posesión. Perfecto para inversores con fondos propios.
🏡 Casa unifamiliar entre medianeras en Santa Coloma de Farners (Girona).
Está ubicada en la Calle Noguer 2, muy próxima al Ayuntamiento, dentro del centro urbano de Santa Coloma de Farners, en una zona consolidada con servicios esenciales y buena conexión por transporte público.
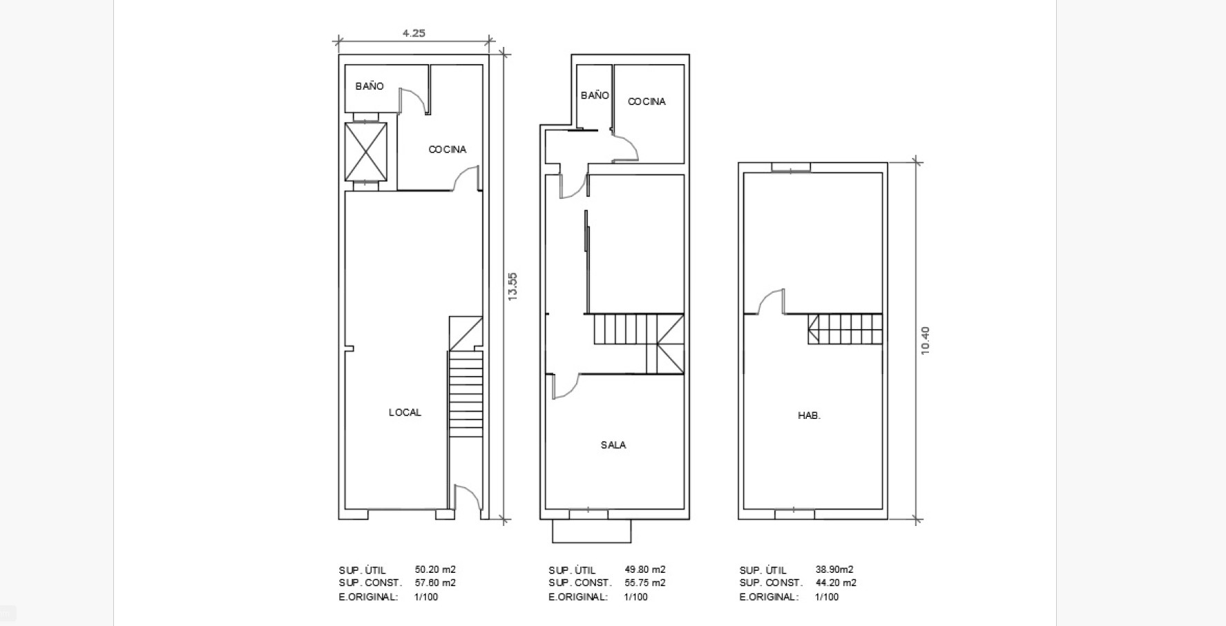
La vivienda cuenta con una superficie construida de 150 m², distribuidos en 3 plantas.
— En la planta baja, el inmueble dispone de un espacio diáfano de estilo local, lo que ofrece un gran potencial de aprovechamiento comercial o profesional, con la posibilidad de solicitar el cambio de uso según la normativa municipal. Una oportunidad ideal para quienes buscan combinar vivienda y actividad en una ubicación céntrica y dinámica.
— En la planta primera se encuentran la sala principal, cocina y baño.
— En la planta segunda, la zona de noche incluye 2 habitaciones y un espacio adicional bajo cubierta sin distribución.
📍 Puntos de Interés y Conectividad
Situada en un entorno urbano tranquilo y bien equipado, con acceso cercano a comercios, restauración, colegios, equipamientos públicos y servicios esenciales. La localidad está bien comunicada mediante autobuses interurbanos que conectan directamente con Girona y otros municipios del entorno.
🚆 Estación de tren Girona — a unos 25 minutos en coche, con conexiones regionales y de larga distancia hacia Barcelona, Figueres, Lleida y Francia.
🚌 Autobuses interurbanos con paradas accesibles desde el centro de Santa Coloma de Farners, ofreciendo conexión directa con Girona y rutas hacia poblaciones cercanas.
✈️ Aeropuerto Girona–Costa Brava — a 15 minutos en coche.
🏖 Playas de Blanes (Costa Brava) — a 30 minutos en coche, situadas a unos 30 km del municipio.
🏙 Ciudades cercanas:
Girona — 25 min
Vic — 40 min
Barcelona — 1h
1. ¿Qué es una cesión de remate?
Es la oportunidad de comprar un inmueble con un gran descuento sobre el precio de mercado. Proviene de una subasta en un procedimiento judicial.
2. ¿Qué es necesario para terminar el proceso judicial?
Necesitarás un abogado y un procurador para terminar el proceso judicial. Oportunicasa ofrece gratuitamente estos servicios hasta la obtención del testimonio (título a inscribir).
3. ¿Cuánto tiempo puede durar el proceso?
Dependiendo del juzgado, la obtención del título de propiedad y posesión puede durar meses.
4. ¿Qué debo tener en cuenta antes de comprar una cesión de remate?
Tendrás que disponer de liquidez para la compra. No es fácil obtener financiación bancaria.
Por lo general no es posible visitar el interior del inmueble.
*DISCLAIMER: La información proporcionada en el anuncio es orientativa y podría no coincidir con la configuración actual del inmueble.
Pueden existir discrepancias entre la dirección, fotografías, características y descripción del inmueble. El precio es una referencia.
Inmueble sin posesión. Perfecto para inversores con fondos propios.
🏡 Casa unifamiliar entre medianeras en Santa Coloma de Farners (Girona).
Está ubicada en la Calle Noguer 2, muy próxima al Ayuntamiento, dentro del centro urbano de Santa Coloma de Farners, en una zona consolidada con servicios esenciales y buena conexión por transporte público.
La vivienda cuenta con una superficie construida de 150 m², distribuidos en 3 plantas.
— En la planta baja, el inmueble dispone de un espacio diáfano de estilo local, lo que ofrece un gran potencial de aprovechamiento comercial o profesional, con la posibilidad de solicitar el cambio de uso según la normativa municipal. Una oportunidad ideal para quienes buscan combinar vivienda y actividad en una ubicación céntrica y dinámica.
— En la planta primera se encuentran la sala principal, cocina y baño.
— En la planta segunda, la zona de noche incluye 2 habitaciones y un espacio adicional bajo cubierta sin distribución.
📍 Puntos de Interés y Conectividad
Situada en un entorno urbano tranquilo y bien equipado, con acceso cercano a comercios, restauración, colegios, equipamientos públicos y servicios esenciales. La localidad está bien comunicada mediante autobuses interurbanos que conectan directamente con Girona y otros municipios del entorno.
🚆 Estación de tren Girona — a unos 25 minutos en coche, con conexiones regionales y de larga distancia hacia Barcelona, Figueres, Lleida y Francia.
🚌 Autobuses interurbanos con paradas accesibles desde el centro de Santa Coloma de Farners, ofreciendo conexión directa con Girona y rutas hacia poblaciones cercanas.
✈️ Aeropuerto Girona–Costa Brava — a 15 minutos en coche.
🏖 Playas de Blanes (Costa Brava) — a 30 minutos en coche, situadas a unos 30 km del municipio.
🏙 Ciudades cercanas:
Girona — 25 min
Vic — 40 min
Barcelona — 1h
1. ¿Qué es una cesión de remate?
Es la oportunidad de comprar un inmueble con un gran descuento sobre el precio de mercado. Proviene de una subasta en un procedimiento judicial.
2. ¿Qué es necesario para terminar el proceso judicial?
Necesitarás un abogado y un procurador para terminar el proceso judicial. Oportunicasa ofrece gratuitamente estos servicios hasta la obtención del testimonio (título a inscribir).
3. ¿Cuánto tiempo puede durar el proceso?
Dependiendo del juzgado, la obtención del título de propiedad y posesión puede durar meses.
4. ¿Qué debo tener en cuenta antes de comprar una cesión de remate?
Tendrás que disponer de liquidez para la compra. No es fácil obtener financiación bancaria.
Por lo general no es posible visitar el interior del inmueble.
*DISCLAIMER: La información proporcionada en el anuncio es orientativa y podría no coincidir con la configuración actual del inmueble.
Pueden existir discrepancias entre la dirección, fotografías, características y descripción del inmueble. El precio es una referencia.
Otras Características
Registro Parcela
Provincia
Girona
Población
Santa Coloma De Farners
Referencia catastral
2246943DG7324N0001DX
Dirección
Calle Noguer 2
Características Extra
Año de construcción
1900
¿Tienes dudas? Llámame