Fecha inicio subasta: 09-04-2026
Fecha fin subasta: 29-04-2026
Valor subasta: 160.000 €
Depósito: 8.000 €
Datos Básicos
m2 construidos
192 m2
m2 terreno
207 m2
Precio por m2
677 €/m2
Descripción
📢 OPORTUNIDAD DE INVERSIÓN — PROPIEDAD EN PROCESO DE SUBASTA
Inmueble sin posesión. Perfecto para inversores con fondos propios.
Encuentra la subasta en el BOE con este identificador: SUB-JA-2025-256192
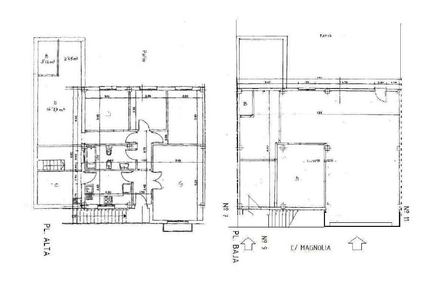
🏡 Casa con patio y garaje en Iznalloz (Granada).
Está ubicada en la Calle Magnolia 9, en una zona residencial consolidada de Iznalloz, con buena conexión con Granada capital y acceso cercano a servicios esenciales.
La vivienda se distribuye en dos plantas y cuenta con una superficie construida de 192 m², sobre una parcela de 207 m². Dispone de 5 habitaciones y 3 baños, con una distribución funcional que incluye salón-comedor, cocina independiente y garaje en planta baja. La vivienda cuenta con patio privado, aportando espacio exterior para uso doméstico.
📍 Puntos de Interés y Conectividad
Situada en una zona con acceso a supermercados, colegios, centro de salud y servicios básicos del municipio.
🚍 Conexión directa con Granada capital mediante líneas de autobús interurbano (trayecto aproximado de 45 minutos, con paradas en el núcleo urbano).
🚗 Acceso rápido a la A-308 y conexión con la A-44 hacia Granada.
🏙 Ciudades cercanas:
Granada — a 40–45 minutos en coche
Guadix — a 30 minutos
Jaén — a 1 hora y 10 minutos
1. ¿Qué es una subasta judicial?
Es la oportunidad de adquirir un inmueble a un precio muy atractivo, por debajo del valor de mercado.
2. ¿Dónde ocurre la subasta?
La subasta ocurre en el Portal de Subastas del Boletín Oficial del Estado, por orden judicial. Se puja online y el mejor postor se adjudica la propiedad.
3. ¿Qué es necesario para poder pujar?
Para pujar tendrás que registrarte en el Portal y pagar un depósito del 5% del valor de subasta. En caso de no ser la mejor puja, el depósito se devolverá inmediatamente.
4. ¿Qué debo tener en cuenta antes de pujar en una subasta inmobiliaria?
En caso de ser ganador, tendrás 40 días para pagar el precio restante en la cuenta del juzgado.
Es necesario contar con liquidez, ya que no se puede financiar con una hipoteca.
Por lo general no es posible visitar el interior del inmueble.
Necesitarás un abogado y un procurador para terminar el proceso judicial.
*DISCLAIMER: La información proporcionada en el anuncio es orientativa y podría no coincidir con la configuración actual del inmueble.
Pueden existir discrepancias entre la dirección, fotografías, características y descripción del inmueble. El precio es una referencia.
Inmueble sin posesión. Perfecto para inversores con fondos propios.
Encuentra la subasta en el BOE con este identificador: SUB-JA-2025-256192
🏡 Casa con patio y garaje en Iznalloz (Granada).
Está ubicada en la Calle Magnolia 9, en una zona residencial consolidada de Iznalloz, con buena conexión con Granada capital y acceso cercano a servicios esenciales.
La vivienda se distribuye en dos plantas y cuenta con una superficie construida de 192 m², sobre una parcela de 207 m². Dispone de 5 habitaciones y 3 baños, con una distribución funcional que incluye salón-comedor, cocina independiente y garaje en planta baja. La vivienda cuenta con patio privado, aportando espacio exterior para uso doméstico.
📍 Puntos de Interés y Conectividad
Situada en una zona con acceso a supermercados, colegios, centro de salud y servicios básicos del municipio.
🚍 Conexión directa con Granada capital mediante líneas de autobús interurbano (trayecto aproximado de 45 minutos, con paradas en el núcleo urbano).
🚗 Acceso rápido a la A-308 y conexión con la A-44 hacia Granada.
🏙 Ciudades cercanas:
Granada — a 40–45 minutos en coche
Guadix — a 30 minutos
Jaén — a 1 hora y 10 minutos
1. ¿Qué es una subasta judicial?
Es la oportunidad de adquirir un inmueble a un precio muy atractivo, por debajo del valor de mercado.
2. ¿Dónde ocurre la subasta?
La subasta ocurre en el Portal de Subastas del Boletín Oficial del Estado, por orden judicial. Se puja online y el mejor postor se adjudica la propiedad.
3. ¿Qué es necesario para poder pujar?
Para pujar tendrás que registrarte en el Portal y pagar un depósito del 5% del valor de subasta. En caso de no ser la mejor puja, el depósito se devolverá inmediatamente.
4. ¿Qué debo tener en cuenta antes de pujar en una subasta inmobiliaria?
En caso de ser ganador, tendrás 40 días para pagar el precio restante en la cuenta del juzgado.
Es necesario contar con liquidez, ya que no se puede financiar con una hipoteca.
Por lo general no es posible visitar el interior del inmueble.
Necesitarás un abogado y un procurador para terminar el proceso judicial.
*DISCLAIMER: La información proporcionada en el anuncio es orientativa y podría no coincidir con la configuración actual del inmueble.
Pueden existir discrepancias entre la dirección, fotografías, características y descripción del inmueble. El precio es una referencia.
Otras Características
Registro Parcela
Provincia
Granada
Población
Iznalloz
Referencia catastral
4085312VG5348E0001FP
Dirección
Cañada Magnolia 9
Características Extra
Año de construcción
1999
¿Tienes dudas? Llámame