Datos Básicos
m2 construidos
104 m2
Precio por m2
721 €/m2
Descripción
📢 OPORTUNIDAD DE INVERSIÓN CON FONDOS PROPIOS: PROPIEDAD EN CESIÓN DE REMATE
ACTIVO SIN POSESIÓN
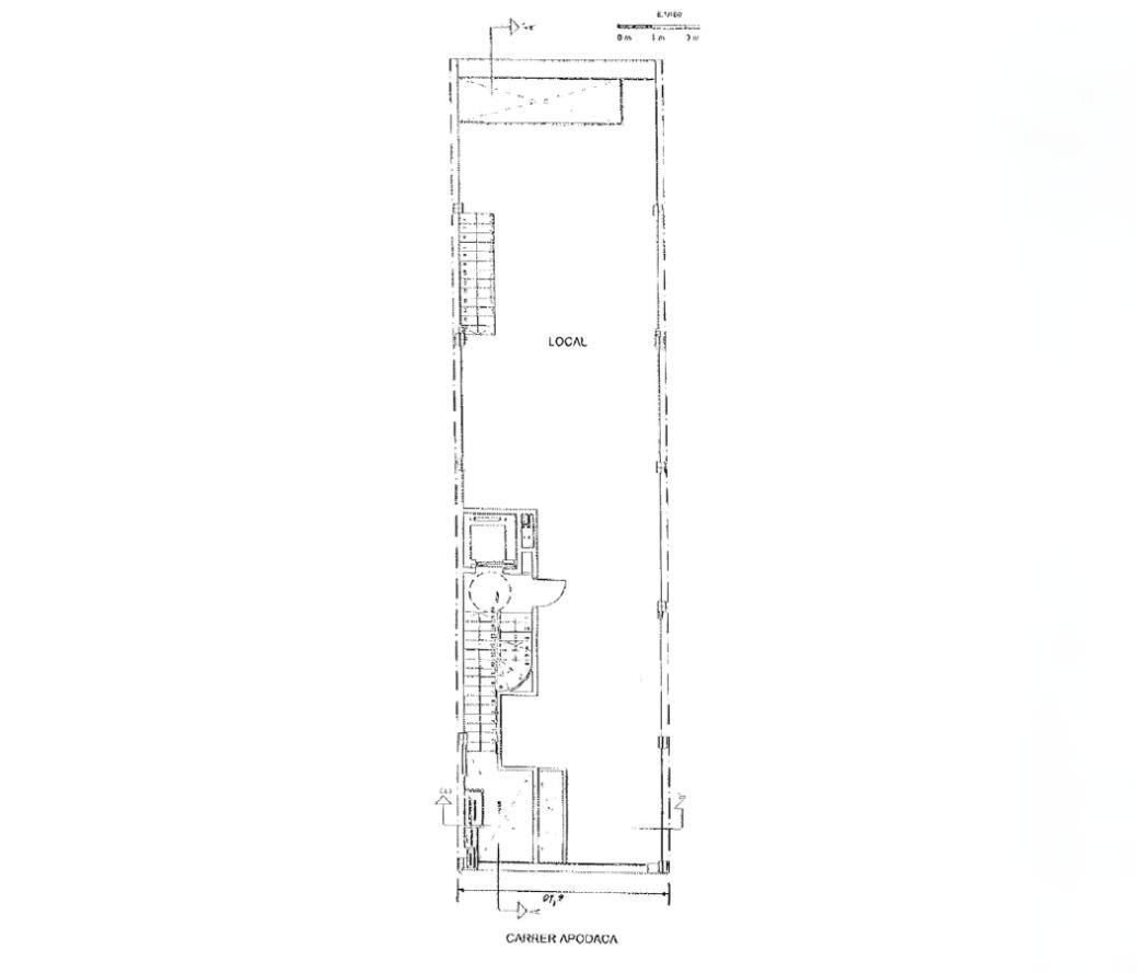
🏬 Local comercial en Tarragona capital.
Ubicado en la Calle Apodaca 16, en pleno centro de Tarragona, este local ofrece una excelente oportunidad para establecer tu negocio en una de las zonas más dinámicas y con mayor visibilidad de la ciudad.
El inmueble, construido en 2003, se sitúa en la planta baja de un edificio de 5 alturas y cuenta con una superficie construida de 125 m² (111 m² útiles), distribuidos en un local diáfano y un aseo. El edificio cuenta con ascensor. Anteriormente se encontraba una clinica de fisioterapia en el establecimiento.
Gracias a su distribución abierta, el espacio es fácilmente adaptable a múltiples actividades. Ideal tanto para inversores que buscan un local versátil en una ubicación estratégica.
📍 Puntos de Interés y Conectividad
Situado en una zona con alto tránsito peatonal y excelente visibilidad, rodeado de comercios, servicios, colegios y oficinas.
🚉 Estación de tren Tarragona — a 10 minutos a pie
🚌 Paradas de autobús urbano — a menos de 2 minutos
🏖 Playas del Miracle y Arrabassada — a 10 minutos en coche
✈️ Aeropuerto de Reus — a 15 minutos en coche
1. ¿Qué es una cesión de remate?
Es la oportunidad de comprar un inmueble con un gran descuento sobre el precio de mercado. Proviene de una subasta en un procedimiento judicial.
2. ¿Qué es necesario para terminar el proceso judicial?
Necesitarás un abogado y un procurador para terminar el proceso judicial. Oportunicasa ofrece gratuitamente estos servicios.
3. ¿Cuánto tiempo puede durar el proceso?
Dependiendo del juzgado, la obtención del título de propiedad y posesión puede durar meses.
4. ¿Qué debo tener en cuenta antes de comprar una cesión de remate?
Tendrás que disponer de liquidez para la compra. No es fácil obtener financiación bancaria.
Por lo general no es posible visitar el interior del inmueble.
*DISCLAIMER: La información proporcionada en el anuncio es orientativa y podría no coincidir con la configuración actual del inmueble. El precio es una referencia.
ACTIVO SIN POSESIÓN
🏬 Local comercial en Tarragona capital.
Ubicado en la Calle Apodaca 16, en pleno centro de Tarragona, este local ofrece una excelente oportunidad para establecer tu negocio en una de las zonas más dinámicas y con mayor visibilidad de la ciudad.
El inmueble, construido en 2003, se sitúa en la planta baja de un edificio de 5 alturas y cuenta con una superficie construida de 125 m² (111 m² útiles), distribuidos en un local diáfano y un aseo. El edificio cuenta con ascensor. Anteriormente se encontraba una clinica de fisioterapia en el establecimiento.
Gracias a su distribución abierta, el espacio es fácilmente adaptable a múltiples actividades. Ideal tanto para inversores que buscan un local versátil en una ubicación estratégica.
📍 Puntos de Interés y Conectividad
Situado en una zona con alto tránsito peatonal y excelente visibilidad, rodeado de comercios, servicios, colegios y oficinas.
🚉 Estación de tren Tarragona — a 10 minutos a pie
🚌 Paradas de autobús urbano — a menos de 2 minutos
🏖 Playas del Miracle y Arrabassada — a 10 minutos en coche
✈️ Aeropuerto de Reus — a 15 minutos en coche
1. ¿Qué es una cesión de remate?
Es la oportunidad de comprar un inmueble con un gran descuento sobre el precio de mercado. Proviene de una subasta en un procedimiento judicial.
2. ¿Qué es necesario para terminar el proceso judicial?
Necesitarás un abogado y un procurador para terminar el proceso judicial. Oportunicasa ofrece gratuitamente estos servicios.
3. ¿Cuánto tiempo puede durar el proceso?
Dependiendo del juzgado, la obtención del título de propiedad y posesión puede durar meses.
4. ¿Qué debo tener en cuenta antes de comprar una cesión de remate?
Tendrás que disponer de liquidez para la compra. No es fácil obtener financiación bancaria.
Por lo general no es posible visitar el interior del inmueble.
*DISCLAIMER: La información proporcionada en el anuncio es orientativa y podría no coincidir con la configuración actual del inmueble. El precio es una referencia.
Otras Características
Registro Parcela
Provincia
Tarragona
Población
Tarragona
Referencia catastral
3229418CF5532G0002GE
Dirección
Calle Apodaca 16
Características Extra
Año de construcción
2003
¿Tienes dudas? Llámame
